二間続きの和室を、家族が集う一体空間へ。
スッキリワンルーム化
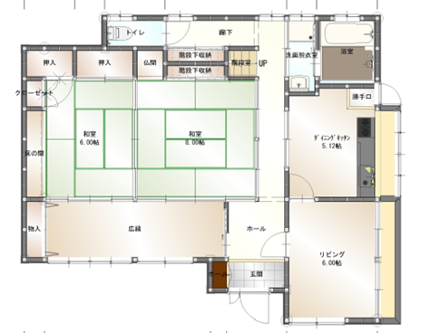
Before




After



Speak from the Heart
和室からLDKへと生まれ変わったこの空間は、家族の時間をひとつに束ねる心地よい舞台です。動線は静かに整えられ、収納は暮らしを優しく受け止める器へと進化。広すぎず狭すぎず、自分たちのリズムで過ごせる距離感が、住まいに新しい息づかいをもたらします。



かつて和室が静かに佇んでいた二間続きの空間は、今、光と風がめぐるひとつの大きなリビングダイニングへ。
白を基調とした柔らかな世界に、木目の天井と残した2本の柱が、この家が歩んできた年月を優しく語りかけます。仏間や押入れだった場所は、暮らしに寄り添う大容量の収納へと姿を変え、
キッチンとリビングをつなぐ通し収納が、日々の動線に静かな快適さを添えます。
また、キッチン奥の収納はリビング側からのウィークインクローゼットと空間が一体になっている構造も面白い発想。



空間活用でスペースいっぱい



壁面や壁の中の空間を活かして、収納等のスペースに活かして、無駄のない設計をしました。
ワンルームスタイルで広々


以前あった和室を、リビングダイニングにし、広々としました。またリビングダイニングの壁面は全面窓にして明かりをたっぷり取り入れできるようにしました。窓の下側には模様があり、外からは見えにくいのも特徴です。
個性的なカラーで自分らしく


天井には木目と、空をイメージした壁紙を貼りました。こういったワンポイントでの演出も暮らしに彩を与えてくれます。
北欧風マンションリノベーション
北欧風のデザインが描く、心地よさの新しいカタチ
Before




After


Speak from the Heart
直線が主流の住宅デザインに、北欧風の柔らかな曲線をひとさじ加えるだけで、空間は驚くほど温もりと優しさを増します。北欧デザイン特有のシンプルさと自然への親和性を取り入れたカーブは、視覚的な安心感を生み出しながら、家族の動線をスムーズに導きます。自然界を彷彿とさせる形状が心を和ませ、リビングにはくつろぎを、キッチンには遊び心を添えます。

家具設置後





曲線の温もりと機能美が融合したリフォームが完成しました。無垢フローリングや塩ビタイルを取り入れた床材、吸湿性に優れたエコカラットを玄関とリビングに設置し、空間の質感をアップ。また、広々としたユニットバスや収納力を強化したキッチンの提案で快適性も向上しました。





さらに※マルチエアコンを採用し、寝室まで快適な温度管理が可能に。※1台の室外機で複数台のエアコンが使用可能)
個性的なカラーで自分らしく




キッチン、リビングダイニング、個室が、それぞれ個性的な絵柄やカラーで美しく調和した住まいが完成しました。玄関正面には印象的な柄壁紙と姿見を配置。足を踏み入れると同時に、洗練されたデザインと快適さが調和した心地よい空間が広がります。
空間活用でスペースいっぱい




スペースを最大限に活用し、収納をオリジナルで作成しました。壁面やデッドスペースを無駄にしない設計で、日常の整理整頓がぐっと楽に。キッチンは横幅を一回り広くし、収納力も抜群にアップ。調理器具や食品のストックもスッキリ収納でき、作業効率も大幅に向上しました。
ワンルームスタイルで広々




若干低めの天井も、曲線を取り入れたデザインにすることで、圧迫感を和らげました。さらに照明は壁付けのダウンライトを採用し、とくにリビング側ではセンターに集中ライト、四隅に拡散ライトを設置。あえて影を生かし、空間全体に立体感と奥行きを演出しています。
ダーク系内装はホテルライクな雰囲気に
階段上の吹き抜けを、新たな子供部屋に
洗練されたリビングデザイン
Before





After




Speak from the Heart
最近のトレンドは、ダーク系のカラーでリビング全体を落ち着いた暗めの雰囲気に演出するデザインを選ぶ人が増えている。私たちはどうしても、住まいには白系を基本に考えてしまいがちだが、このダークカラーには意外な発見がある。日中、少し暗く感じるかもしれないが、その落ち着いた色合いは、まるでホテルのようなリラックスした雰囲気を生み出し、妙に心が安らぐのだ。オフィスでは白、そして白い照明が標準だが、家に帰ると一転、まったく異なる空間が広がっている。そのギャップが驚くほどドラマチックで、まるで別世界に引き込まれるような感覚を味わうことができる。ダークな色彩がもたらすその深い安らぎと、癒されるひととき。家に帰るたび、その空間が心を包み込み、疲れた心に新しいエネルギーを注いでくれる。

お客様から「2階に子供部屋を追加したい」というご要望をいただき、従来の階段上にあった吹き抜けを、階段の位置を移動させることで部屋に変えるリノベーションを行いました。また、対面キッチンとホテルライクな雰囲気を求めるご希望に沿って、壁紙や照明にこだわり抜いたリビングをデザイン。ダーク系のカラーで全体をまとめ、これまでの空間とは異なる、斬新で洗練された仕上がりとなりました。このようなお客様のご要望は、私たちに新たな視点を与え、従来の固定観念を超えたデザインの幅を広げる貴重な機会となっています。施主様のアイデアは、私たちの成長に繋がる大切な経験です。






個性的なカラーで自分らしく


リビング同様、2つのトイレもカラーにこだわりました。ダーク系のカラーとコンクリート柄の壁紙で全く違うイメージに。
ワンルームスタイルで広々

対面キッチンからリビング、ダイニング、そしてその先に広がる奥のスペースまで一望できる設計となっています。この開放感あふれるレイアウトにより、家族の気配を感じながら料理を楽しんだり、ゲストとの会話を途切れさせることなく、自然なコミュニケーションが生まれます。広々とした視界が、空間全体に広がりをもたらし、まるで一つの大きな部屋にいるような一体感を感じることができます。
カラーにこだわるリノベ
壁を取り払い、光が行き渡る空間へ
個性的なカラーで彩を。
Before



After


Speak from the Heart
日本の住まいの多くはナチュラルカラーやモノトーンが主流で、ワンポイントで色を添えることが多い。しかし、カラフルな色使いも間違いなく有りだ。その選択には勇気が必要で、ハードルが高く感じるかもしれない。鮮やかな色彩が部屋を彩ると、日常が一気に明るくなり、気分も高まる。壁に塗られた大胆な色、カラフルな家具や装飾品がもたらす活気は、住まいに新たな命を吹き込む。

お客様は一年の住まい経験を経て、理想の部屋を具体化しました。和室の壁を取り払い、広々としたLDKへと変貌。既存の家具と調和する内装色で、洗練されたデザインを実現しました。細部にまでこだわり、お客様の理想を反映した空間が完成。特に、色選びには細心の注意を払い、居心地の良さと美しさを両立させています。このリノベーションは、お客様のニーズに完全に応える空間づくりを目指しました。

個性的なカラーで自分らしく


赤と紫をベースにしたリビングダイニングは、家具との調和を重視し、空間に個性的な雰囲気をもたらします。これらの色は、空間全体を引き締め、洗練されたデザインを実現。赤の暖かさと紫の高貴さが、居住空間を一層魅力的にし、家具とのバランスが整った居心地の良いリビングダイニングを提供します。
ワンルームスタイルで広々

6畳の和室の壁を取り払い、奥行きを感じさせるワンルームへリノベーションしました。コンパクトながらも開放感を生み出し、空間を広く感じさせるデザインに。従来の間取りでは得られなかった広がりを持たせることで、限られたスペースでも最大限の居住性と快適さを提供します。
カフェ風の対面キッチン
JERCOリフォームデザインコンテスト
全国キッチン部門最優秀リフォーム賞
カフェスタイルの
対面キッチンで思いを実現
Before



After


Speak from the Heart
自分らしく、個性的で、他にはない住まい。そんな独自性を、どこまで追求すべきかと考えることがある。自分にとっての独自性は、家族が住みやすいと感じるものとは異なるかもしれない。しかし、譲れないこともある。譲ってしまえば、住まいはつまらなくなり、心が躍る場所ではなくなってしまう。
プロとして、その見極めが非常に重要。譲れない部分と、住みやすさのバランスを見つけることが、デザインの真髄。住まう人の心地よさを最優先に考えながらも、個性を大切にする。その微妙なバランスを保つことで、唯一無二の住まいが生まれるのだ。

中古マンションがまるでお気に入りのカフェのように生まれ変わります。独立性の高かったキッチンを対面式にリノベーションし、家族とのコミュニケーションを深める空間へと進化。従来のリフォームでは難しいとされていた床の高さの問題も、私たちの工夫で解決。腰壁内に給排水経路を巧みに配置し、床を一切上げることなく、開放的で洗練されたカフェ風キッチンを実現しました。魅力的な住まいへと生まれ変わります。

カフェ風で楽しむ


「カフェ風の対面式キッチン」は、開放的で家族やゲストとのコミュニケーションが自然に生まれやすく、料理をしながらでも会話を楽しむことができます。また、対面式であるため、リビングやダイニングとの一体感があり、家全体が広く感じられます。さらに、カフェ風のデザインはおしゃれで落ち着いた雰囲気を演出し、日常の生活に彩りを添えます。
個性的なカラーで自分らしく


住まい全体に統一感を持たせながらも、自分らしさを表現できる空間を作り出せます。個性的なカラーの選択により、家族や来客の目を引く印象的な空間が生まれ、日常生活に彩りが加わります。また、家具や内装の色や素材を自由に組み合わせることで、機能性とデザイン性を両立させた快適な住まいが実現します。
無駄がなく機能性が高いリノベ
機能性と楽しさを
融合した、わくわくする暮らし
Before



After


Speak from the Heart
リフォームは、もっと楽しく、遊び心を持って挑んでみたい。従来の暮らしは、どこか共通した一般的なものが多い。間取りに革新的な変化を加えるのは難しいかもしれないが、壁紙ならとことん遊べる余地がある。壁紙一枚で、部屋の表情はまるで魔法のように変わる。ワンポイントで遊び心を演出することで、住まいに新しい風を吹き込む。その小さな変化が、日常に彩りを加え、心にささやかな喜びをもたらしてくれる。リフォームは、ただの改装ではなく、自分らしさを表現するチャンス。大胆な色使い、意外性のあるデザイン、一つひとつの選択が、空間を特別なものに変えていく。遊び心を持って、暮らしに新たな命を吹き込むことで、日々の生活がもっと楽しく、もっと豊かになる。

住まいに遊び心と快適さを加えるため、新しい間取りを提案しました。無駄になりがちな広縁や廊下を、効率的に収納や居室に変換しました。キッチンは、使いやすさと機能性を兼ね備え、LDKに隣接する和室を洋室に変更。さらにスライディングウォールを導入し、広い空間としても、プライベートな空間としても利用できる柔軟なレイアウトを実現しました。



開けたり締めたり


スライディングウォールは、空間を柔軟に活用できる優れたオプションです。必要に応じて広い開放的な空間を作り出し、またプライバシーを確保するために個別の部屋に分けることが可能です。デザイン性にも優れており、住宅の美観を損なうことなく機能性を高めます。また、固定された壁と比べ住まい全体のレイアウトを自由に変更できる柔軟さが特徴です。
個性的なカラーで自分らしく



デザイン性のある柄の壁紙を貼ることで、日常的に使用する空間が一気に個性的な雰囲気に変わります。小さな空間にアクセントを加えることで、印象が明るく楽しいものになります。また、柄や色を選ぶことで、さらに、壁紙の変更は比較的簡単にできるため、気分や季節に合わせて手軽にインテリアをリフレッシュできるのも大きなメリットです。





